front of house.JPG

PALM SPRINGS MID CENTURY MODERN

Dates: 2010 - 2012
Location: Palm Springs, CA

Completed while working as a freelance architectural consultant with Schappacher White, DPC
www.schappacherwhite.com

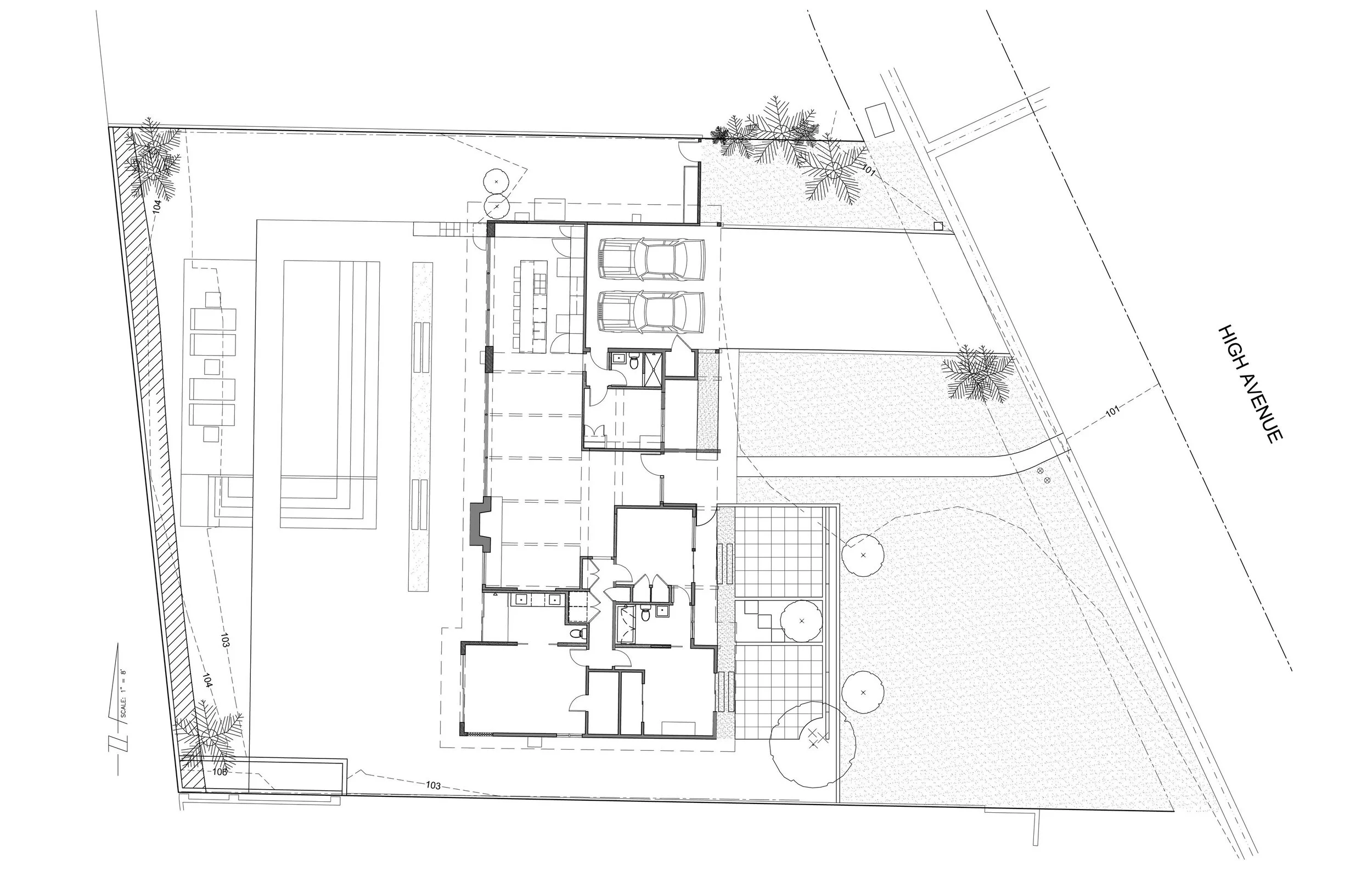
As the design architect, Schappacher White was tasked with redesigning this mid century modern home. The scope included a full interior renovation, an addition at the kitchen, addition at the master bedroom, exterior hardscape and landscape design, and exterior covered room. Focus was placed on making a connection between the interior and exterior space throughout the house.

PROPOSED SITE PLAN

PROPOSED SITE PLAN

Previous
Previous

Shelter Island Home

Next
Next

2010 Country Living House of the Year - Modular